NEW CLUSTER

TARUKEJORA HOUSE

Varian terbaru di Tatar Tarubhawana didesain serasi dengan lingkungannya berlanggam arsitektur Modern Tropical House serta dimanjakan oleh fitur ‘eco smart home’. Tampil anggun dengan detil tampak muka yang dipadukan dengan fungsi balkon.

Tarukejora House / Location

Image

Suasana hunian asri dan nyaman dengan menghadirkan taman tematik 'Science Of Trees' bagi penghuni sebagai tempat berkreatifitas di luar ruang namun dekat dengan rumah.

Tarukejora House terletak di lokasi yang strategis di Kota Baru Parahyangan dekat dengan :

Town Center
Ikea Store
Wahoo Waterworld
Parahyangan Golf

TARUKEJORA HOUSE

'‘Science of trees'

Harmoni alam dan karya arsitektur yang menyuguhkan pengalaman hidup estetik kini hadir di Kota Baru Parahyangan.

Image
Image
Image
smarthome1
smarthome2
smarthome2
smarthome2

Balkon menjadi 'katalis' ruang dalam dan alam yang asri di semua ruang tidur lantai atas.




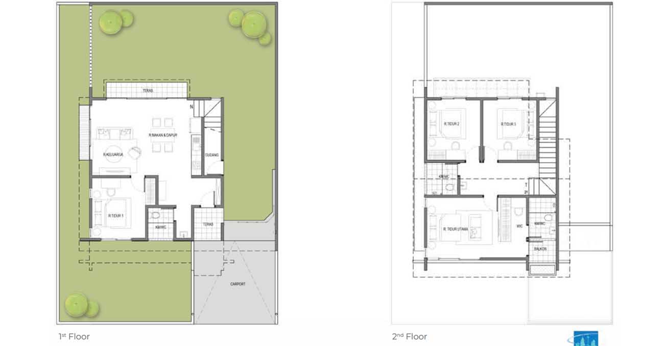
FLOOR PLAN
Tarukejora House | Standard LB | LT : 97 | 120 m²

smarthome1

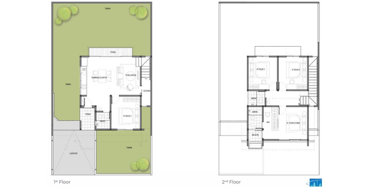
FLOOR PLAN
Tarukejora House | Standard LB | LT : 97 | 136 m²

smarthome1

Spesifikasi Rumah
Tarukejora House | Standard LB | LT : 97 | 120 - 136 m2

smarthome2

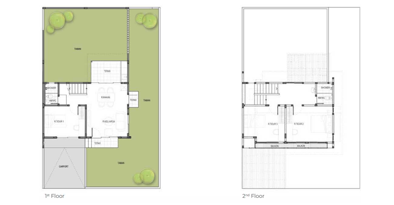
FLOOR PLAN
Tarukejora House | Standard LB | LT : 133 | 209 m²

smarthome1

Spesifikasi Rumah
Tarukejora House | Standard LB | LT : 133 | 209 m²

smarthome2

FLOOR PLAN
Tarukejora House | Corner LB | LT : 101 | 165 - 187 m²

smarthome1

Spesifikasi Rumah
Tarukejora House | Corner LB | LT : 101 | 165 - 187 m²

smarthome2

FLOOR PLAN
Tarukejora House | Corner LB | LT : 147 | 243 - 247 m²

smarthome1

Spesifikasi Rumah
Tarukejora House | Corner LB | LT : 147 | 243 - 247 m²

smarthome2

Town Facilities
• Al-Irsyad Satya Islamic School • Bandung Alliance Intercultural School • BPK Penabur School • Bina Persada School • Cahaya Bangsa Classical School • Damian School • Universitas St. Borromeus • Sundial Science Center • Akademi Bahasa Asing Internasional • Bale Seni Barli • Mason Pine Hotel • Bale Pare • Bumi Pancasona Sports Club • Cahya Kawaluyan Hospital • RSIA Parahyangan • Masjid Al-Irsyad Satya • Jonas Photo • Bicycle Lane • Shuttle Bus • Trans Metro Pasundan • Shell • Pertamina • IKEA Store • Parahyangan Golf • Banking Center • Automotive Center • Home & Living Center • Town Management

New Facilities
• Bumi Hejo (Urban Park, Kopi Nako, Casa by Lesavoye) • Wahoo Waterworld • KBP Food Market at Bale Pare • Mc Donald’s • Baby Dutch Pancake • Ambrogio Patisserie • Starbucks

Free Shuttle Car from St. KCIC Padalarang to KBP
New Access Fly Over Simpang Padalarang
Upcoming Facilities
• Bank BJB • Karnivor • Noah Barn’s Coffeenery • Suki Time Grill Time • Yogya • Zen Reflexiology


Hubungi Kami Download Brochure Kami

Related Post

Info Contact

Mr. Abdul Hadi Fadhilah

Get In Touch

Bumi Indraprasta – Home & Living Centre
Jl. Panyawangan Kav. 6-B No.6 Padalarang, Bandung Barat 40553

Call +62 821-2736-3370

infokbpa@gmail.com

© Marketing Kota Baru Parahyangan. All Rights Reserved. Designed by Indo Brand Technology