NEW CLUSTER

TATAR NILAPADMI

Berada di antara gugusan peninsula yang beragam keindahannya, mulai dari lembah hijau nan alami hingga hamparan padang golf bertaraf internasional serta dikelilingi danau yang memberikan kesegaran sekaligus keunikan bagi suatu Kawasan Hunian.

Tatar Nilapadmi / Location

Image
Image

Kota Baru Parahyangan kembali mempersembahkan peninsula terbaiknya Tatar Nilapadmi. Mengambil nama permaisuri utama dari kisah Prabu Siliwangi yang memilki arti sosok yang sangat berharga direpresentasikan oleh kata ‘Nila’ yaitu warna ungu tua (indigo) sebagai cerminan warna kebangsawanan.

Tatar Nilapadmi terletak di lokasi yang strategis di Kota Baru Parahyangan dekat dengan :

Town Center
Ikea Store
Water Theme Park
Parahyangan Golf

TATAR NILAPADMI

'‘An Aesthetic Living'

Harmoni alam dan karya arsitektur yang menyuguhkan pengalaman hidup estetik kini hadir di Kota Baru Parahyangan.

Image
Image
Image
smarthome1
smarthome2
smarthome2
smarthome2

Antusias dan kreatifitas takkan pernah padam di area kitchen dan pantry yang nyaman untuk menyuguhkan sajian istimewa bagi keluarga.



Type Nilapadmi House Build area 265 m² | Land area 290 m²

smarthome1
smarthome2
smarthome2

1st Floor
1 Bedroom 1 + Bathroom
2 Inner Courtyard 2
3 Living & Dining Room

2nd Floor
1 Master Bedroom
2 Walk in Closet + Bathroom
3 Balcony
4 Service Area 3
5 Bedroom + Bathroom 2
6 Bedroom + Bathroom 3

smarthome2


Spesifikasi Rumah

smarthome2
smarthome2


Type Nilakancana House Build area 151 m² | Land area 198 m²

smarthome1

1st Floor
1 Bedroom 1
2 Living & Dining Room
3 Kitchen

2nd Floor
1 Master Bedroom
2 Walk in Closet + Bathroom
3 Side Balcony
4 Bedroom 2
5 Bedroom 3

Image

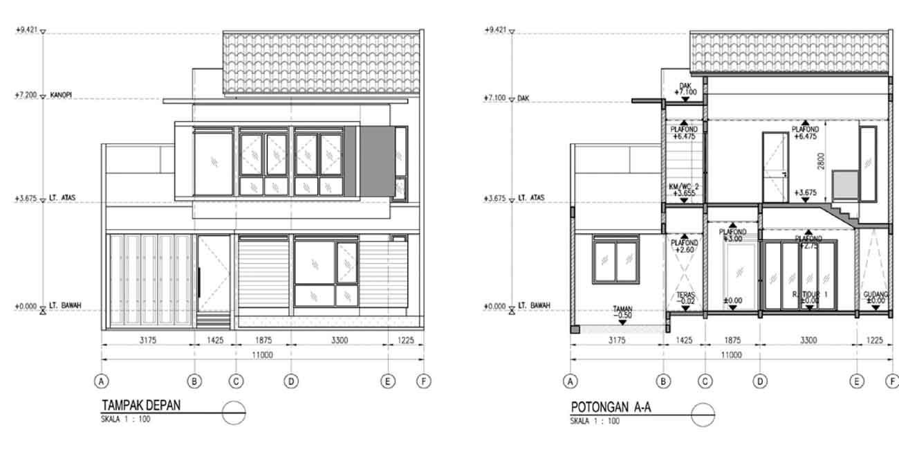
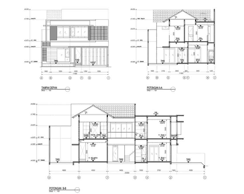
Nilakancana LB 151 m² & LT 198 m² tampak depan dan potongan

Image

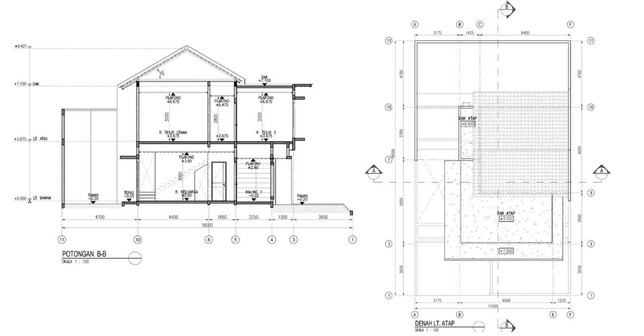
Nilakancana LB 151 m² & LT 198 m² tampak samping dan atas

Image

Hubungi Kami Download Brochure Kami

Related Post

Info Contact

Mr. Abdul Hadi Fadhilah

Get In Touch

Bumi Indraprasta – Home & Living Centre
Jl. Panyawangan Kav. 6-B No.6 Padalarang, Bandung Barat 40553

Call +62 821-2736-3370

infokbpa@gmail.com

© Marketing Kota Baru Parahyangan. All Rights Reserved. Designed by Indo Brand Technology